花崗巖一種鋼硬的晶體狀礦石,硬度較高,莫氏硬度在6以上,錘破比較適合破碎中等硬度及脆性的物料,不能說錘破不可以破碎花崗巖,只是破碎成本會有點高。

一般不建議使用錘破破碎花崗巖
錘破有重型錘式破碎機和整形錘式破碎機之分,雖然可以實現一破成型,但也是針對中等硬度及脆性的物料。如使用錘破破碎花崗巖這種硬度高,不易破碎的石頭,錘頭的磨損會比較大,更換頻率比較快,可能還會對錘破造成傷害,生產及維護成本會增加,所以一般不建議使用錘破來破碎花崗巖。

錘式破碎機不是很適合破碎花崗巖,破碎花崗巖可以選擇顎式破碎機、臥式旋回破、反擊破碎機或圓錐破,具體可根據加工工藝,選擇花崗巖粗碎或中細碎設備。
顎式破碎機“V”型破碎腔,可以破碎大塊花崗巖,碎石生產線前鋒設備,多用于粗碎,能適應各種硬度的物料,破碎高硬礦石的效果也很好,生產效率高,一臺鄂破一小時可以加工1500碎石料。

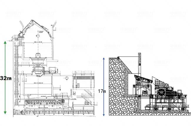
臥式旋回破碎機是中譽鼎力研發制造的高硬度礦石破碎設備,可破碎高硬度的鐵礦石、銅礦石等物料,能實現對花崗巖的破碎加工,臺時產量在800~3500噸,適合中大型砂石生產線。
臥式旋回破碎機不同于傳統旋回破,其外形、破碎工藝以及基建上有很大差異,能節省40%基建成本。

傳統旋回破和臥式旋回破基礎建設對比圖

反擊式破碎機和圓錐破碎機屬于二級破碎設備,多用于鄂破后,對鄂破破碎的碎石料進行細碎加工。
反擊破碎機破碎效果很好,成品料粒形大小均勻。有些反擊破型號進料粒度比較大,但不建議直接獨立使用加工花崗巖,否則反擊破破碎花崗巖時間會比較長,損耗會比較大,工作效率會。
圓錐破碎機破碎的成品料粒形美觀,適合加工高硬度物料,可以對花崗巖進行中細碎,但投資相對較大。

通過以上介紹,錘破可以破碎花崗巖,但錘破維護成本會比較大,會增加生產成本。破碎花崗巖用粗碎用顎式破碎機、粗碎臥式旋回破,中細碎用中細碎旋回破、反擊破碎機或圓錐破,細碎制砂用沖擊式制砂機。具體怎么選擇設備還要看產量需求、現場大小等,詳細可咨詢廠家,可以根據需求設計工藝圖給出投資預算
已有632人成功參與
廠家銷售部:18336065555
售后服務部:0373-4222222