中譽鼎力下設有22家服務網點,分布于各省,目前還有更多服務網點籌備中。
公司下有旋回破碎機、臥式旋回破粗碎機、臥式旋回中細碎機,根據用戶需要,搭配合理方案。
公司下有項目工程部,根據不同客戶要求打造讓客戶滿意的工藝生產方案。

生產能力:140-3200t/h
進料粒度:≤2000mm

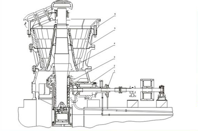
旋回式破碎機主要以機座、偏心套、轉動、破碎圓錐、中架體、橫梁、油缸等部件組成。
旋回破碎機在工作的時候,電動機通過皮帶輪和圓錐齒輪帶動偏心套轉動,偏心套轉動時帶動破碎圓錐圍繞著破碎機作懸擺運動,對物料進行擠壓、劈裂和彎曲的而破碎,破碎后的物料在自身重力作用下排出。
很多人還是比較關心價格的,旋回破碎機產量比較大,價格在50萬起步,上百萬、上千萬的都有,主要看自己的需求,不同的廠家、規格型號,價格差別也比較大,雖然說初期的投資成本有些高,但是如果從長遠來看的話,旋回破的整體效益比其他粗破設備要高。


說起廠家,推薦各位用戶到河南區域尋找,河南物價較低,制造設備成本小,價格優惠,河南中譽鼎力礦山設備生產廠家,從事礦山行業三十多年,有大批量的設備研發制造經驗,各地都有生產案例,感興趣的用戶可以咨詢我們在線客服,幫你安排進行實地考察。
中譽鼎力下設有22家服務網點,分布于各省,目前還有更多服務網點籌備中。
公司下有旋回破碎機、臥式旋回破粗碎機、臥式旋回中細碎機,根據用戶需要,搭配合理方案。
公司下有項目工程部,根據不同客戶要求打造讓客戶滿意的工藝生產方案。




旋回破碎機的破碎腔很深,生產能力高,處理量大,電耗低,和同為粗碎設備的顎式破碎機比較,生產能力比它高一倍以上。

旋回破碎機易于啟動,不需要使用飛輪等輔助工具,現在比較先進的大型旋回破可以實現滿倉帶載啟動。

旋回破碎機的初期投資比較貴,因為設備產量比較大,但從長遠發展來看,整體效益比其他粗破設備要高。

旋回破碎機廣泛的應用在冶金、建材、化工和水電部門等行業,可實現對各類物料的粗破作業。
| 型號 | 進料口尺寸 (mm) | 出料口尺寸 (mm) | 出料口調整范圍 (mm) | 處理能力 (t/h) | 電機功率 (kw) |
| PXZ 0506 | 500 | 60 | 60-75 | 140-170 | 130 |
| PXZ 0710 | 700 | 100 | 100-130 | 310-400 | 145 |
| PXZ 0909 | 900 | 90 | 90-120 | 380-510 | 210 |
| PXZ 0913 | 900 | 130 | 130-160 | 625-770 | 210 |
| PXZ 0917 | 900 | 170 | 170-190 | 815-910 | 210 |
| PXZ 1216 | 1200 | 160 | 160-190 | 1250-1480 | 310 |
| PXZ 1221 | 1200 | 210 | 210-230 | 1560-1720 | 310 |
| PXZ 1417 | 1400 | 170 | 170-200 | 1750-2060 | 430 |
| PXZ 1422 | 1400 | 220 | 210-230 | 2160-2370 | 400 |
| PXZ 1618 | 1600 | 180 | 180-210 | 2400-2800 | 310 |
| PXZ 1623 | 1600 | 230 | 210-240 | 2800-3200 | 310 |
| PXQ 0710 | 700 | 100 | 100-120 | 200-240 | 130 |
| PXQ 0913 | 900 | 130 | 130-150 | 350-400 | 145 |
| PXQ 1215 | 1200 | 150 | 150-170 | 720-815 | 210 |
*旋回破碎機參數變更恕不另行通知,實際數據以實物為準。
如果您對我公司旋回破碎機設備感興趣,可填寫您的需求,或通過在線咨詢,電子郵件,電話(同微信)與我們聯系,我們的客戶服務團隊將為您提供服務。